Contact Us
浙江元利自控阀门科技有限公司
咨询电话:0577-67186769
图文传真:0577-67186769
手机:18969709793
联系人:马经理
E-mail:275475469@qq.com
地 址:浙江省温州市永嘉县瓯北码道工业区.

详细介绍

FEP(F46)、PCTFE(F3)衬氟旋启式止回阀适用在-50℃~150℃的各种浓度的王水、硫酸、盐酸、氢氟酸和各种有机酸、强酸、强氧化剂。
FEP衬氟旋启式止回阀还适用于各种浓度的强碱有机溶剂以及其它腐蚀性气体、液体介质的管路上使用。
该衬里阀门适用于城建、化工、冶金、石油、制药、食品、饮料、环保
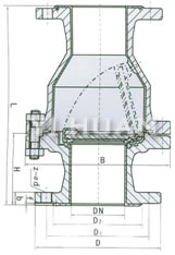
H44 F46/F3-6/10/16C/P ANSI:150Lb/300Lb结构图
衬氟旋启式止回阀主要材料及标准
| 零件名称 | 材 料 | 技术规范 | |
| 上下阀体 | 铸铁、铸钢、不锈钢、内衬F46 、F3 | 设计标准 | GB12236 |
| 阀瓣 | 铸钢、不锈钢、衬F46 、F3 | 结构长度 | GB12221 |
| 阀盖 | 灰铸钢、铸钢、不锈钢、内衬F46 、F3 | 法兰标准 | JB/T79-78 |
| 垫圈 | F4 | GB9113.1-26 | |
| 检验试验 | GB/T13927 | ||
衬氟旋启式止回阀外型与连接尺寸
| 公称通径 | PN1.0(MPa)主要外形尺寸和连接尺寸(mm) | 参考值 | 重量 | |||||||
| DN | L | D | D1 | D2 | f | b | Z-Φd | B | H | ?K |
| 25 | 160 | 115 | 85 | 58 | 3 | 14 | 4-Φ14 | 128 | 70 | 6 |
| 32 | 180 | 135 | 100 | 69 | 3 | 16 | 4-Φ18 | 140 | 80 | 7 |
| 40 | 200 | 145 | 110 | 78 | 3 | 16 | 4-Φ18 | 160 | 85 | 8 |
| 50 | 230 | 160 | 125 | 88 | 3 | 18 | 4-Φ18 | 178 | 90 | 10 |
| 65 | 290 | 180 | 145 | 108 | 3.5 | 18 | 4-Φ18 | 205 | 110 | 21 |
| 80 | 310 | 195 | 160 | 124 | 3.5 | 20 | 4-Φ18 | 230 | 130 | 25 |
| 100 | 350 | 215 | 180 | 144 | 4 | 20 | 8-Φ18 | 255 | 140 | 30 |
| 125 | 400 | 245 | 210 | 174 | 4 | 20 | 8-Φ18 | 305 | 145 | 49 |
| 150 | 480 | 280 | 240 | 199 | 5 | 22 | 8-Φ23 | 345 | 160 | 68 |
| 200 | 500 | 335 | 295 | 254 | 5 | 24 | 8-Φ23 | 415 | 180 | 93 |
| 250 | 550 | 390 | 350 | 309 | 5 | 26 | 12-Φ23 | 490 | 220 | 138 |
| 300 | 620 | 440 | 400 | 363 | 5 | 30 | 12-Φ23 | 560 | 240 | 180 |
| 350 | 720 | 500 | 460 | 428 | 5 | 34 | 16-Φ23 | 620 | 240 | 250 |